THE BUILDING

Classic architecture and contemporary interiors. Redesigned by Hale Brown Architects, with newly constructed fourth & fifth floors and a private terrace.

7,212 sq ft of sophisticated office space

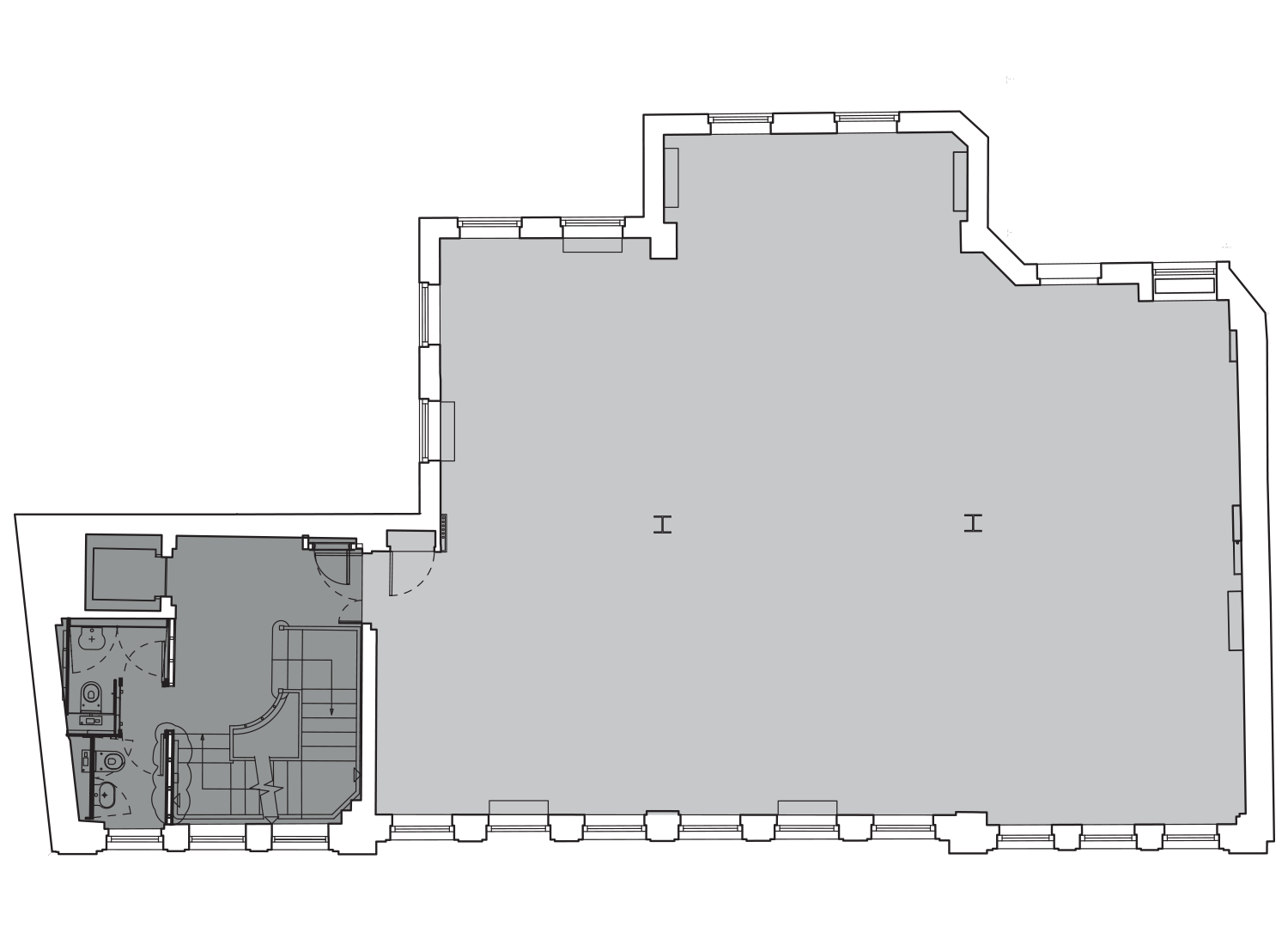
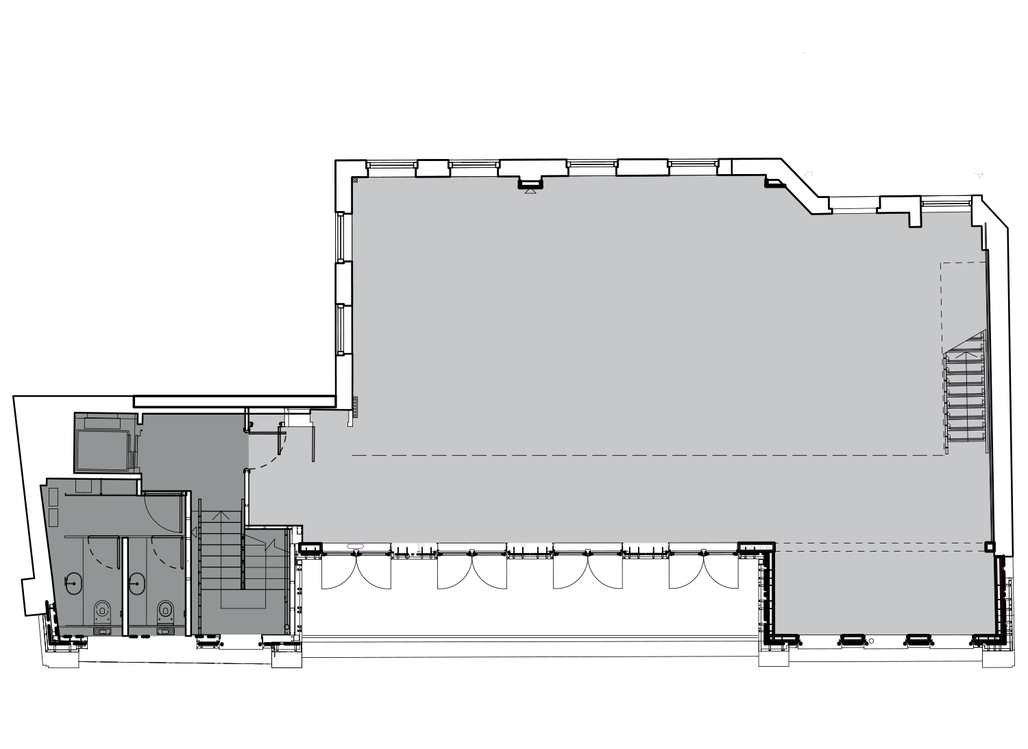
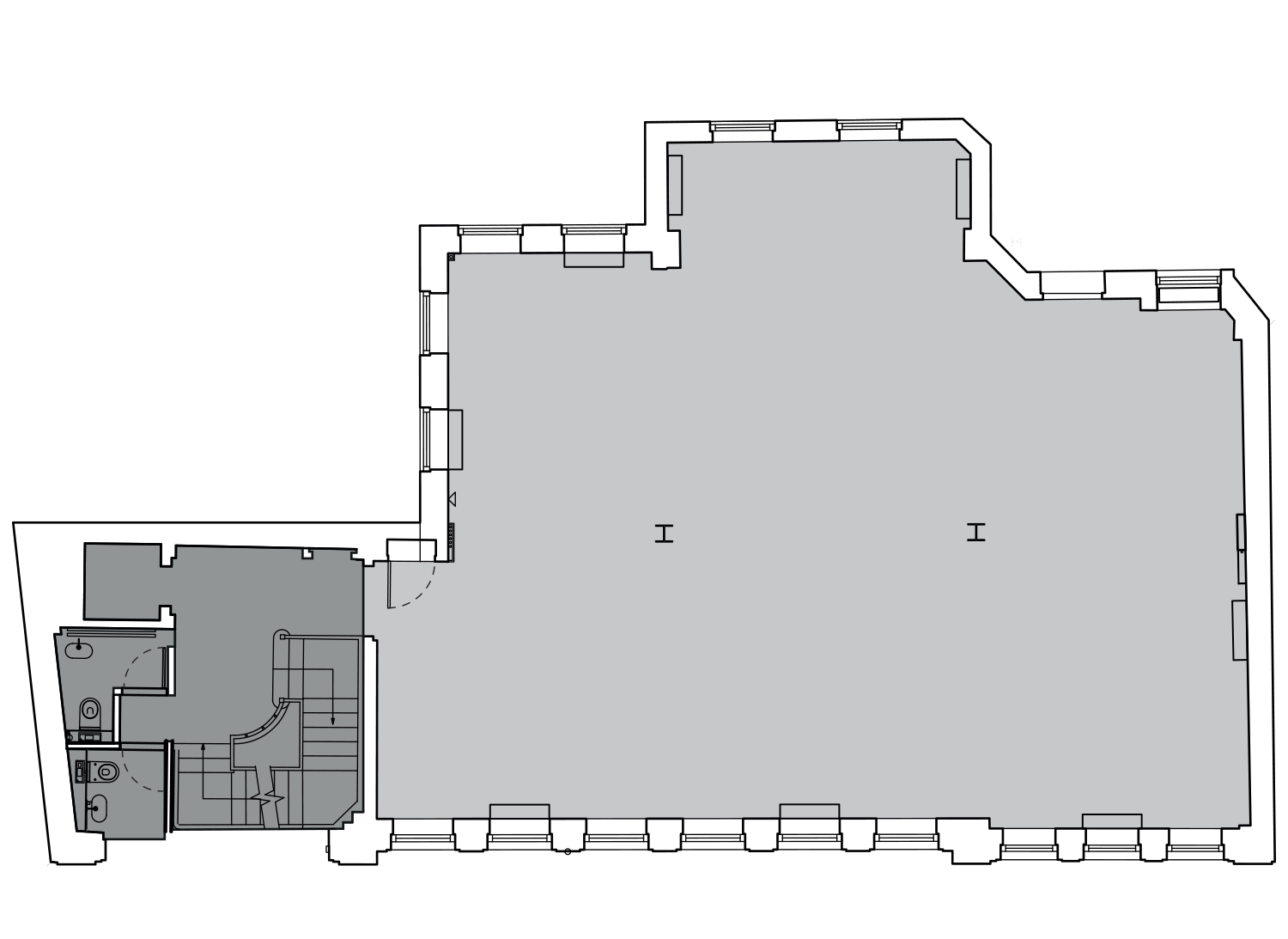
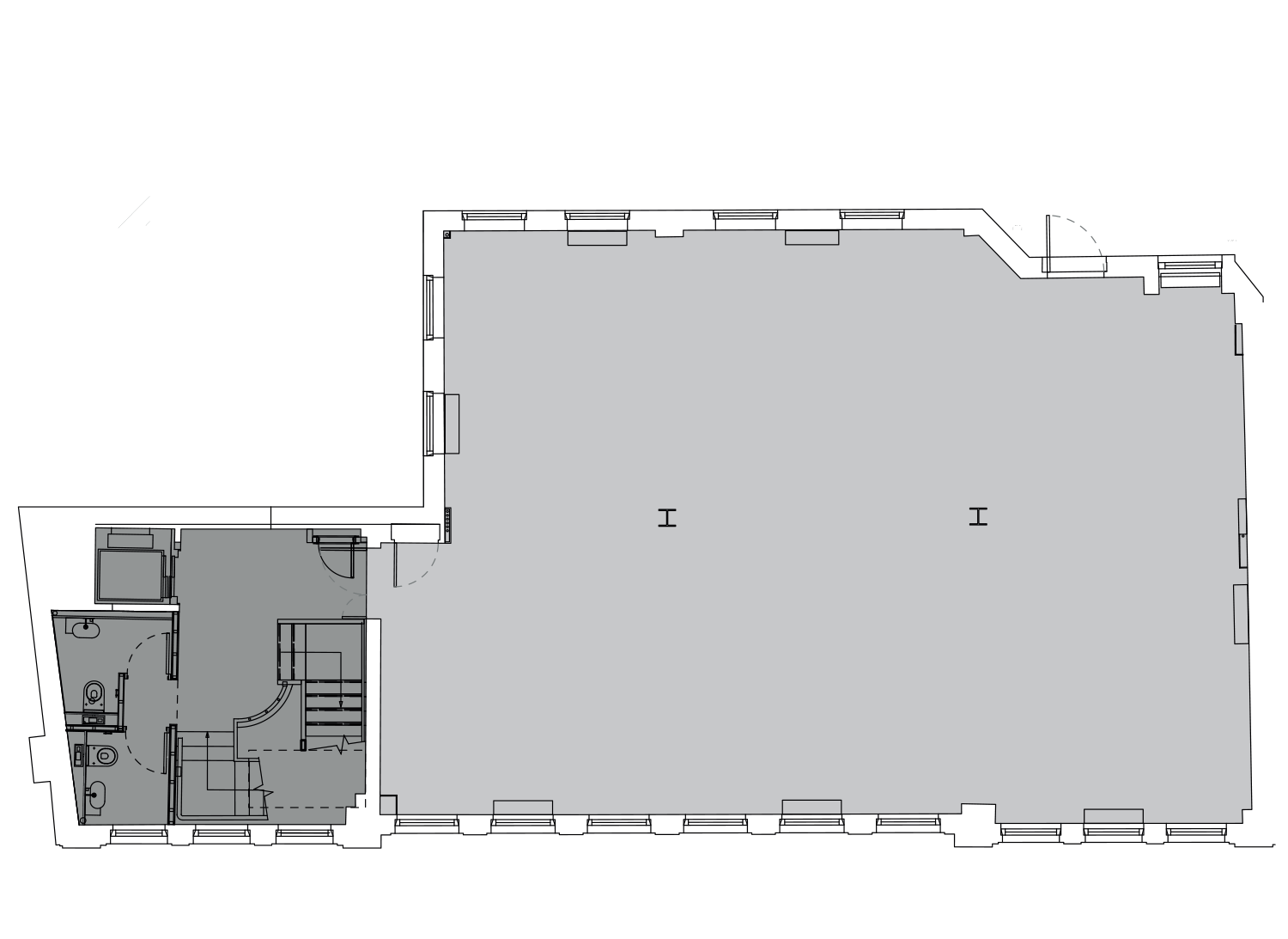
FLOOR SQ FT
Fourth & FIFTH 2224
Third 1614
Second 1700
First 1674
Total 7,212

SPECIFICATION

  • Commissionaire
  • Restored terrazzo staircase
  • VRV air conditioning
  • 4th and 5th floor penthouse with mezzanine
  • 4th floor roof terrace
  • Raised floors
  • Plaster ceilings and LED lighting
  • Bike storage
  • Onsite showers & lockers

THE BUILDING IN PICTURES

FLOOR PLANS

Familiarise yourself with every floor of Lower James Street.

Lower James Street

The wooden bannister on the staircase